受付時間10:00~19:00 水曜・日曜・祝日定休
青山売買.comトップ > 全物件検索 > 秀和麻布笄町レジデンス
秀和麻布笄町レジデンス
かつての武家地に建つ秀和レジデンス 〈新価格〉
六本木駅より徒歩10分、寺院に隣接して静かに佇む秀和シリーズのマンションです。広尾・表参道・乃木坂など4駅5路線が利用可能な利便性の高い立地で、西麻布交差点から表参道方面へ入った場所に位置しています。江戸時代には武家地だったという笄町(こうがいちょう)の一角にあり、周辺は低層住宅や寺院が多く、落ち着いた環境です。
1970年10月築の地上7階建て・総戸数56戸で、秀和らしいヨーロッパ風のかわいらしい外観です。オートロック導入済で、長期修繕計画書に基づいてしっかり維持管理されています。
秀和レジデンスシリーズをご売却・ご購入・賃貸・管理をご検討の方は、多数契約実績のある弊社にお任せください!是非一度お問合せくださいませ。
秀和レジデンスシリーズ、売買実績34件、賃貸実績11件!(2025年12月時点)
マニアページはこちら。
| 物件名 | 秀和麻布笄町レジデンス | 価格 | 5,999万円 |
|---|
| 住所 | 東京都港区西麻布2-24-25 | 交通 | 東京メトロ日比谷線・都営大江戸線「六本木」駅 徒歩10分、「広尾」駅 徒歩14分、銀座線・半蔵門線・千代田線「表参道」駅 徒歩14分 |
|---|
| 専有面積 | 41.35㎡ | 間取り | 1LDK |
|---|
| 管理費月額 | 10,600円 | 修繕積立金 | 17,500円 |
|---|
| 管理会社 | レジデンス・ビルディングマネジメント株式会社 | 管理形態 | 全部委託(日勤) |
|---|
| 建築年月日 | 1970年10月 | 構造規模 | 鉄筋コンクリート造7階建 |
|---|
| 分譲会社 | 秀和株式会社 | 施工会社 | 住友建設株式会社 |
|---|
| 土地権利 | 所有権 | 用途地域 | 第1種中高層住居専用地域 |
|---|
| 総戸数 | 56戸 | 現況 | 空室 |
|---|
| 引渡 | 即可 | 設備 | エレベーター/オートロック/駐車場:空要確認/駐輪場:空要確認 |
|---|
| 備考 | ペット飼育不可/事務所使用可能(規約有)/大規模修繕工事実施済(2018年3月) |
|---|---|
| 情報更新日 | 2026年2月1日 |
![]() |
|
![]() |
最寄りの六本木駅より徒歩10分、外苑西通りと六本木通りが交わる西麻布の交差点から表参道方面に進んだ住宅街に建っています。この一帯は江戸時代には武家地だったそうで、現在も低層の住宅や寺院などが立ち並ぶ、落ち着いた住環境です。
1970年10月築の7階建て、総戸数57戸のマンションです。秀和シリーズでお馴染みの白い外壁にブラックアイアンのバルコニー、青い瓦屋根のヨーロピアンな佇まい。
![]() |
![]() |
![]() |
![]() |
屋根とスロープが付いたエントランスアプローチ。エントランスはオートロックなので、セキュリティ面も安心感が増しますね。
2018年3月に外壁や屋上防水工事等の大規模修繕工事実施済みで、管理状況も良好。長期修繕計画書があり、定期的にメンテナンスを行って大切に住み継がれている様子がうかがえます。
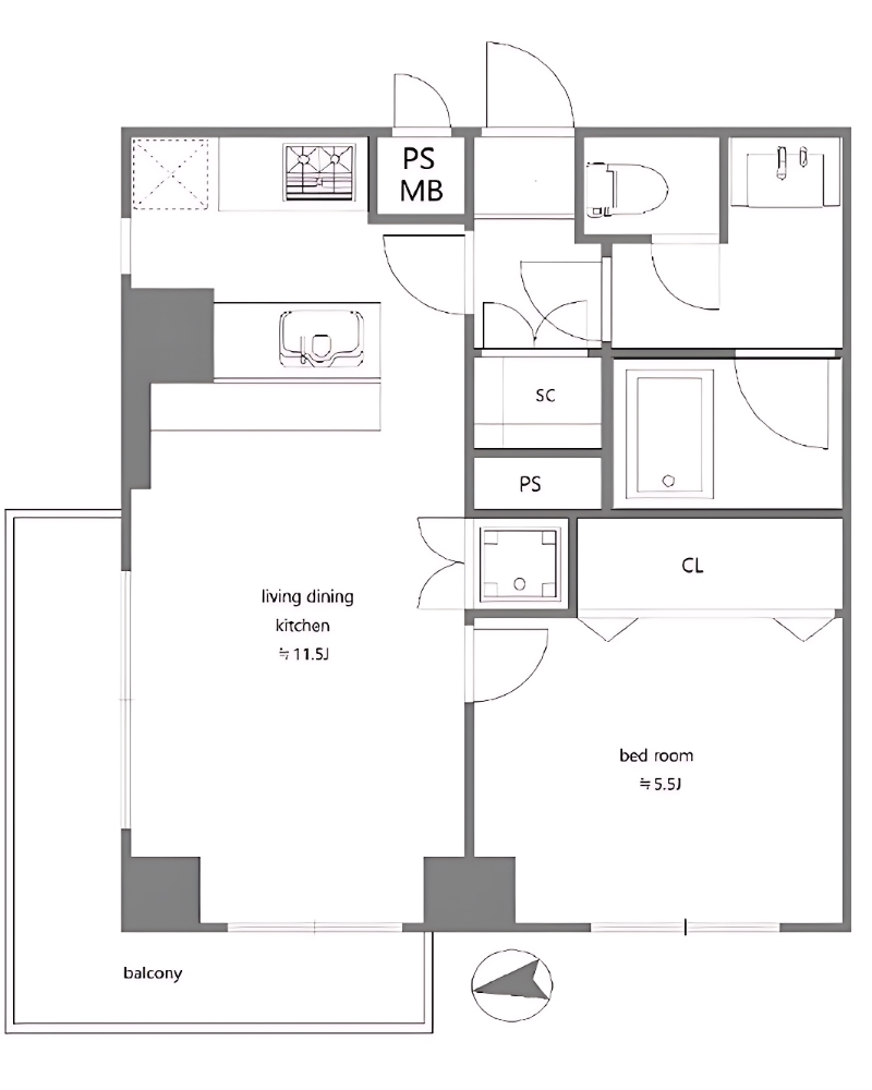
■販売中 2階部分(1LDK/41.35㎡) 5,999万円 〈新価格〉
●北・西向き角部屋
●新規内装リノベーション済
●事務所利用相談可能(規約有)
![]() |
2階の角部屋が販売開始となりました!
新規リノベーション済みの室内は、専有面積約41㎡の1LDK。廊下などのデッドスペースがなく、居室や収納をしっかり確保した動線の良い間取りです。
![]() |
LDKは約11.5帖で、バルコニーに囲まれて開放感のある空間です。主採光は北向きのため南向きほどの直射光はありませんが、安定した明るさが感じられます。バルコニーからは敷地内やその先にある大安寺の落ち着いた眺望が望めます。六本木通りや首都高から離れたお部屋位置のため、穏やかに過ごせそうです。
洋室は約5.5帖で、個室として十分な広さを確保。クローゼットも備えています。西側は隣接する建物が近めですが、薄手のカーテン越しに日差しは届きそうです。
![]() |
![]() |
水まわりもリフォーム済みで、新生活を気持ちよく始められます。
立地の良さから、セカンドハウスや事務所としての利用もご検討いただけるかと思います。
空室のためゆっくりとご内覧いただけます。
お気軽にお問い合わせくださいませ。
![]()
■その他 共用部
![]() |
![]() |
![]() |
![]() |
![]() |
|
エレベーターが一基。内廊下が主ですが、お部屋によっては一部外廊下になります。外廊下でも通りから見えない位置なので、プライバシーは守られそうです。
物干し場がある屋上からは六本木方面のアーバンな眺めも楽しめますよ。
![]()
![]() |
![]() |
マンション名に付されている「笄町(こうがいちょう)」の名称は、江戸時代から昭和42年まで存在した町名で、かつて町域を流れる笄川にかかっていた笄橋に由来しています。この一帯は江戸時代には武家地だったそうで、マンション周辺には寺院も多く、落ち着いた街並みです。道元禅師による曹洞宗の大本山、永平寺(福井県)の別院として開かれた「大本山永平寺別院長谷寺」や、根津美術館もご近所です。
![]() |
![]() |
六本木ヒルズへも徒歩10分。ショッピングやグルメ、映画館などが揃い、都心ならではの暮らしを気軽に楽しめる立地です。
六本木ヒルズのゲートタワー内には、2023年7月にスーパーマーケット〈信濃屋〉がオープン。1階には惣菜やお菓子、チーズ・生ハム・酒類、2階には生鮮食品やグロッサリー、日用品を揃えています。有機栽培や減農薬の青果、ワインも幅広く取り扱い、日常の買い物に便利です。
さらに「マルシェロッポンギ 西麻布店」や六本木通り沿いの「明治屋六本木ストアー」「成城石井 西麻布店」も徒歩圏内にあり、買い物環境が充実しています。
![]() |
![]() |
![]() |
|
青山霊園(徒歩6分)や都立青山公園(徒歩9分)などもご近所で、都心でありながら自然も身近に感じることができますよ。
![]()
■成約済み 2階部分(2LDK/49.39㎡)
●東・北向き角部屋
●全居室に窓があり、採光・通風良好
●現況での引渡しのため、ご自身でリノベーションしたい方におすすめです!
![]() |
ご自分で内装を行いたい方におすすめの2階部分、東・北向き角部屋です。
専有面積約49㎡のコンパクトな2LDKの間取りですが、角部屋のため全居室に窓があり、採光・通風ともに良さそうです。
![]() |
![]() |
![]() |
![]() |
![]() |
![]() |
和室を残した懐かしい雰囲気の室内。和室、洋室ともに2面採光で、浴室にも小窓があり、自然光が入ります。
![]() |
バルコニーはL字型でゆったりとしたつくりです。東向きのため陽当たりは午前中が中心ですが、周囲に高層の建物がなく、日照が遮られることはなさそうです。
エントランスから奥まったお部屋のため落ち着いた印象で、隣接する「慈眼院」や植栽なども見えて、都会の喧騒から離れた穏やかな眺めです。
■成約事例 2階部分(2LDK/49.39㎡)
●東向き角部屋
●全居室に窓があり、採光・通風良好
●管理体制良好
●オーナーチェンジ物件
賃貸想定(現況月額賃料:140,000円/想定年間賃料収入:1,680,000円/表面利回り約4.2%)
※事業・投資を目的とし、入居者がいる状態で取引される物件です(内見はできません)。オーナー=所有者だけが変わり、賃貸借契約の内容は新オーナーが引き継ぐことになります。賃料及び利回りについては、将来にわたり確実に保証されるものではありません。
![]() |
2階部分、東・北向き角部屋です。
専有面積約49㎡のコンパクトな2LDKの間取りですが、角部屋のため全居室に窓があり、採光・通風ともに良さそうです。
立地・管理体制もよく、継続的に賃貸需要を見込めるかと思います。
![]()
■成約済み 6階部分(1LDK/41.35㎡)
●北・西向き角部屋
●日当たり・通風・眺望良好
●リノベーション履歴有(2016年4月)
![]() |
6階部分の角部屋が販売になりました。日当たり・通風に優れ、眺望も良好です♪
![]() |
|
![]() |
広さ約41㎡の開放感のある1LDKタイプです。角部屋のため窓が多く、室内は爽やかな光に満ちています。そしてバルコニーからは、こんな清々しい眺望が!
一般的には北向きは敬遠されがちですが、こちらのマンションにおいては、六本木通りや首都高から離れた北向きのお部屋の方が静かで、しかも北向き上層階は眺望も良いことから人気が高いお部屋位置です。
![]() |
![]() |
![]() |
|
![]() |
|
![]() |
|
室内は2016年4月にリノベーションされていて、きれいにお使いなのでこのまま引き継いでお住まいいただけそうです。
LDKは約11帖。2面採光のため開放感があり、実際の面積よりも広く感じられました。洋室とは引き戸で区切ることができます。床面にレールのない吊り下げ式の引き戸なので、見た目もすっきり。
![]() |
|
![]() |
![]() |
![]() |
![]() |
キッチンは玄関から入ってすぐの位置にあります。省スペースですが、3口コンロを備えて必要十分な仕様。自然光の入る小窓も嬉しい。
![]() |
![]() |
![]() |
|
![]() |
|
![]() |
![]() |
![]() |
|
![]() |
|
洋室は約6.5帖で、西向きの窓があります。隣接するマンションの屋上部分に面していますが、しっかり日差しが入ります。窓辺の陽だまりが心地よい♪
引き戸を開放すれば約17.5帖の広々とした空間になり、採光・通風も増しますよ。
![]() |
![]() |
![]() |
![]() |
![]() |
|
バルコニーは北から西にL字型に配されています。周囲に高層の建物がなく、開放感のある眺望です。眼下には厳かな大安寺、その先に青山霊園の緑も見晴らせて爽快です。
首都高や六本木通りの音はほとんど気にならず、窓を開けていると鳥のさえずりが聞こえてきて、とてものどかでした。
![]() |
![]() |
![]() |
![]() |
![]() |
![]() |
![]() |
![]() |
玄関を入って左側にバス、トイレ、洗面所があります。バスルームは独立していますが、トイレと洗面所は同室です。脱衣スペースはしっかり確保できそうなので、3点セパレートが必須という方以外でしたら許容範囲かなと思います。
留意点としてもう一つ、バスルームの入り口が小さめで、小柄な女性でもかがまないと頭をぶつけてしまうかもしれません。バスルーム自体の天高はとれているのですが、出入りの際に少し不便そうなので、生活をイメージしながら現地でお確かめいただきたいと思います。
ヘキサゴンタイルがかわいい玄関。シューズボックスが正面にあり、鍵や小物を置ける小さな棚が造作されています。
![]()
■成約済み 3階部分(1DK/36.00㎡)
●新規内装リフォーム住戸!
●大型ウォークインクローゼット付の1DK
●安心の住込み管理
![]() |
ご紹介するのは3階部分、東南向きのお部屋です。専有面積約36.00㎡の1DKタイプで、お一人暮らしやセカンドハウスに良さそうです。
![]() |
|
![]() |
|
![]() |
|
![]() |
|
![]() |
![]() |
![]() |
![]() |
![]() |
![]() |
![]() |
![]() |
室内は新規内装リフォーム済みでとてもきれいです。明るい色調でまとまり、上品な印象。
玄関を入って手前にダイニングスペース、ベランダ側に洋室を配置した暮らしやすそうな間取りです。
透過性のある室内ドアのため、プライベートスペースを確保しつつ、ダイニングへの採光にも役立ちます。
洋室の大型ウォークインクローゼットやキッチンに並列する家電収納など、収納も豊富。
水回り設備も一新され、快適に新生活を始めていただけそうです。
![]() |
|
![]() |
|
![]() |
![]() |
![]() |
|
窓からの借景は西麻布とは思えない、穏やかな風景が広がっていました。
![]()
■成約済み 1階部分 (1LDK/50.40㎡)
●南向きの明るい専用庭+テラス付!
●新規内装リフォーム済の1LDK!
●事務所使用相談可能(管理規約有)
![]() |
1階のお部屋が販売となりました♪専有面積50.40㎡の1LDKで、悠々自適なお一人暮らしにぴったりのお部屋です。
![]() |
|
![]() |
![]() |
![]() |
|
![]() |
![]() |
室内は新規リフォーム済みで、木の温もりに包まれたナチュラルな雰囲気。廊下などのデッドスペースが少なく、居住空間を最大限に確保した効率的な1LDKの間取りです。
約14.5帖のLDKは南向きの窓から明るい光が射し込みます。爽やかな床面も相まってホッとくつろげる空間です。
隣り合う洋室とは格子状のスライドドアで緩やかに仕切ることができ、プライバシーを確保しつつ開放感も兼ね備えています。間仕切り壁に設けられた室内窓は、光と風を行き渡らせる機能面はもちろん、見た目にもおしゃれですね♪
洋室には可動棚の付いたウォークインクローゼットが新設されています。衣類から家電収納まで便利に使えそうです。
システムキッチンはクリナップ製の2700サイズで、たっぷり仕舞えるスライド収納や食洗機が付いた機能派です。前面に施されたブリックタイルがさり気なくアクセントになって可愛い…♪
![]() |
||
![]() |
![]() |
![]() |
バス・トイレ・洗面などの水まわりスペースは玄関を入って右手にまとまっています。ユニットバスはTOTO製の1216サイズで追い焚き付。
今回のリフォームでは専有部内の給排水管が交換されていますので、気持ちよく新生活をスタートしていただけると思います。
利便性の高い都心立地、かつ人気の秀和シリーズですので、自己使用はもちろん、投資用としても幅広くご検討いただけるかもしれません。
![]()
■成約済み 6階部分(1LDK/41.35㎡)
●角部屋・2面バルコニー!
●陽当たり・通風・眺望良好!
●新規フルリノベーション済(平成28年4月完了)
●新宿~青山方面を一望できます
![]() |
6階の角部屋が販売開始となりました。お一人暮らしにぴったりな41.35㎡の1LDKです。
フルリノベーションを終え、爽やかに生まれ変わっています。
![]() |
LDKは約11帖。角部屋でバルコニーがL字型に配され、とても明るい印象。天井に梁の出っ張りがないので開放感があり、実際の面積よりも広く感じます。
![]() |
洋室は約6.5帖。写真のように、引き戸を開放して広々としたワンルームとしてもいいですね♫引き戸は上から吊るすタイプで床にレールがないので、見た目もスッキリしています。
![]() |
壁面にはシステム収納が備わっています。扉がないので工夫して収納する必要がありそうですが、お好みでカスタマイズもできそうです。
![]() |
キッチン横にも窓があります。写真にはありませんが、背後に冷蔵庫を置くスペースが確保されています。
![]() |
![]() |
![]() |
![]() |
トイレと洗面室は省スペースをうまく活かし、コンパクトにまとまっています。壁面にあしらわれたタイルも洒落てます。玄関の六角タイルもさりげなく個性を主張していますね♪
シューズインクローゼットはしっかり奥行きが確保され、使い勝手が良さそうです。
バルコニーからは新宿~青山方面を一望する開放感あふれる眺望です!
築年数は経っていますが、オートロック対応+住込み管理でセキュリティ面もしっかりしているので、女性のお一人暮らしでも安心してお住まいいただけるかと思います。
投資用やセカンドハウスとしてもオススメですよ。
![]()
■成約済み 5階部分(2LDK/51.48㎡)
●南西角住戸につき、陽当たり・眺望良好
●新規内装リノベーション+アフターサービス保証付
●使い勝手のよい2LDK
●各居室に収納
![]() |
ご紹介するのは、5階の角部屋。新規内装リノベーションを終え、ピカピカに生まれ変わったお部屋です。

2LDK、51.48㎡とややコンパクトですが、完全振り分けタイプなので、ご夫婦もしくは、小さなお子さんがいらっしゃるファミリーでも、快適に暮らしていただけそうです。
![]() |
約10帖のLDK。洋室側のバルコニーから明るい光を取り込めます。
![]() |
ナチュラルテイストで明るい雰囲気のキッチン。浄水器内蔵のシャワー水栓が備わっています。
左右に空いたスペースを活かして、冷蔵庫やカップボードなど使いやすくレイアウトができそうです◎
![]() |
![]() |
LDKから玄関側を見た様子。右側のドアが玄関、左側がサニタリールームです。
![]() |
サニタリールームには、トイレ、洗面化粧台、洗濯機置場、バスがまとまっています。
洗面化粧台はシンプルで使い勝手がよさそうです。深さのあるスライド収納なので、ランドリー用品なども仕舞っていただけます。
![]() |
バスルームは、ブラウンのバスパネルで落ち着いた雰囲気。浴室換気乾燥機も付いて、機能性もあります。
![]() |
約6帖の洋室。南側にバルコニー、西側に窓の2面採光で陽当たり・眺望ともに良好です。クローゼットも備わっています。
![]() |
バルコニー側からのアングル。スライドのを開閉によって、間取りをセレクトできますね♪