受付時間10:00~19:00 水曜・日曜・祝日定休
青山売買.comトップ > 全物件検索 > サンビューハイツ南青山
サンビューハイツ南青山
ペットと暮らせる低層ヴィンテージ
「サンビューハイツ南青山」は、表参道駅から徒歩5分の希少な立地に佇むヴィンテージマンションです。ラグジュアリーブランドの旗艦店や高級マンションが立ち並ぶ華やかな場所でありながら、みゆき通りから一本中に入っているため、車の往来が少なく閑静な住環境です。
1980年竣工の4階建てで、総戸数は42戸。タイル張りの外壁や、丸みを帯びたファサードが印象的な低層タイプです。築年数は経っていますが、大規模修繕や耐震補強などが行われており、大切に管理されている様子がうかがえます。規約による制限はありますが、ペット飼育も可能なマンションです。
| 物件名 | サンビューハイツ南青山 | 価格 |
|---|
| 住所 | 東京都港区南青山5-4-5 | 交通 | 東京メトロ銀座線・半蔵門線・千代田線「表参道」駅 徒歩5分 |
|---|
| 専有面積 | 間取り |
|---|
| 管理費月額 | 修繕積立金 |
|---|
| 管理会社 | 日本ハウズイング株式会社 | 管理形態 | 一部委託(日勤) |
|---|
| 建築年月日 | 1980年7月 | 構造規模 | 鉄筋コンクリート造地上4階建 |
|---|
| 分譲会社 | 大日成建設株式会社 | 施工会社 | 大日成建設株式会社 |
|---|
| 土地権利 | 所有権 | 用途地域 | 第2種中高層住居専用地域 |
|---|
| 総戸数 | 42戸 | 現況 |
|---|
| 引渡 | 設備 | オートロック/防犯カメラ/宅配ボックス/駐車場:空無(月額50,000円)/駐輪場:空無(月額1,000円)/バイク置き場:設置無 |
|---|
| 備考 | 事務所使用可(細則有)/ペット飼育可(飼育細則有)/修繕履歴:大規模修繕工事実施(2016年3月)、耐震補強工事実施(2018年3月)、消防設備改修工事(2019年3月)、集合ポスト新規交換(2019年12月) |
|---|---|
| 情報更新日 | 2025年1月10日 |
![]() |
|
![]() |
表参道駅より徒歩5分の希少な場所に建つ「サンビューハイツ南青山」。1980年7月に竣工した4階建の低層レジデンスで、街並みに調和する白いタイル張りの爽やかな外観です。直線と曲線が混在した優美なファサードがヴィンテージマンションらしい洗練された佇まいです。
〈その他外観〉
![]() |
|
![]() |
![]() |
![]() |
![]() |
1980年竣工の4階建てで、総戸数は42戸。白いタイル張りの外壁や、丸みを帯びたファサードが印象的な低層マンションです。エントランスには花崗岩や大理石が使用されるなど、共用空間にも落ち着いた品格が漂います。
築年数は経っていますが、大規模修繕や耐震補強などの工事が行われており、大切に管理されている様子がうかがえます。
![]()
![]() |
|
![]() |
![]() |
海外のラグジュアリーブランドの旗艦店が立ち並ぶみゆき通りから1本中に入った場所に位置しています。骨董通りや青山通りもすぐなので、車での移動にも便利。
![]() |
![]() |
青南小学校は平坦な道のりで徒歩5分と、お子様がいらっしゃるファミリーにも安心の立地です。
![]() |
|
![]() |
![]() |
![]() |
![]() |
日常の買い物には、「紀ノ国屋 インターナショナル 青山店」や「ナチュラルハウス 青山店」のほか、冷凍食品が揃う「Picard(ピカール) 青山骨董通り店」などが利用できます。2021年には「ビオセボン 骨董通り店」もオープンし、さらに選択肢が広がりました。周辺にはカフェやレストランも充実しており、その日の気分に合わせて外食を楽しめる環境です。
![]() |
![]() |
根津美術館やブルーノート東京も徒歩5分ほど。アートや音楽と共に上質な都心生活を享受できそうです。
![]()
■成約済 2階部分(2LDK/80.53㎡)
●南青山5丁目アドレス、こだわりの「黒谷和紙」を使った静謐な空間
●2025年10月末フルリノベーション済(専有部配管交換を含む)
●ペット飼育可能(飼育細則あり)
![]() |
表参道駅から徒歩4分。ブティックなどが立ち並ぶ華やかな青山らしい街並みの中に、
静謐な空気をまとった素敵なお部屋が販売開始となりました。
洗練された内装だけでなく、使い勝手にも配慮されたゆったりとした2LDKのお部屋のご紹介です。
![]() |
![]() |
![]() |
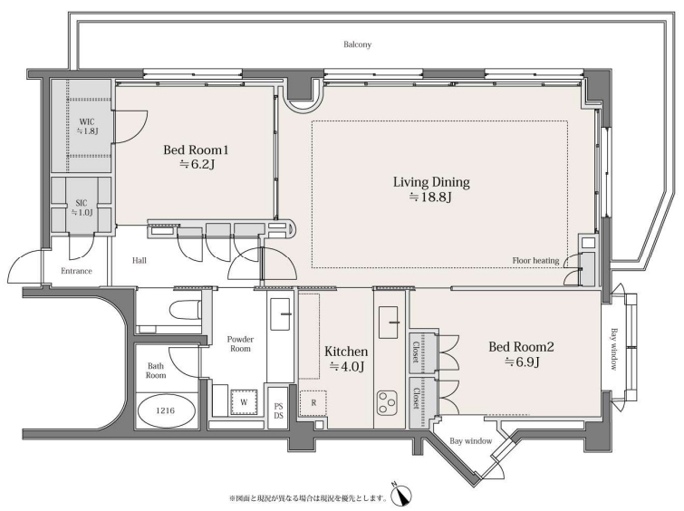
約18.8畳のリビングダイニングは、L字型ワイドバルコニーと一体となった開放的な大空間。北東の窓から朝の清らかな光が室内に広がり、心地よい一日の始まりを演出してくれます。足元にはベージュのカーペット、さらに床暖房も備えられており、人やペットも一年中快適に過ごせそうですね。
![]() |
![]() |
![]() |
![]() |
![]() |
![]() |
このお部屋の象徴ともいえる、備え付けの障子戸。すべて閉めれば、空間は洗練された表情へと一変します。障子越しに差し込む柔らかな光が室内を穏やかに包み込み、目隠しの効果に加えて日常に深い安らぎをもたらしてくれそうです。さらに壁や天井には贅沢に質感のある和紙をあしらい、ビニルクロスにはない自然な風合いが、空間に上質な趣を添えています。
![]() |
![]() |
リビングに隣接した約6.2畳の個室は、建具で仕切ることで独立した書斎や、ゲストをお迎えする客間としても活用できるフレキシブルな空間です。室内には約1.8畳のウォークインクローゼットを完備。季節の衣類や寝具まで十分に収まる頼もしい収納力を備えており、住まいの美観を損なうことなく、すっきりと整った暮らしをサポートしてくれます。
![]() |
|
![]() |
|
![]() |
![]() |
東側に面した約6.9畳の寝室は、窓から緑を望む、静寂に包まれた落ち着きのある空間です。窓辺には丁寧に設えられた出窓スペースがあり、お気に入りの小物やグリーンを飾れば、自分らしい豊かな時間が流れるプライベートスペースが完成します。時間の移ろいを柔らかな光と共に迎えられる、心地よい安らぎの場所です。
![]() |
|
![]() |
|
![]() |
![]() |
独立したキッチンスペースには、凛とした輝きを放つステンレスのキッチンを採用。食洗機や浄水器といった機能性も十分に備わっており、お料理にしっかりと向き合える環境が整っています。また、引き戸を閉めれば匂いや生活感をさりげなく隠せるのも嬉しいポイント。ゲストを招いた際も、リビングの洗練された雰囲気をそのままに、おもてなしの時間を楽しめそうです。
![]() |
![]() |
広さを備えたL字のバルコニーは、開放感あふれる心地よい空間です。正面に建物はあるものの、距離がしっかりと確保されているため、圧迫感を感じることはありません。手すりは胸元までしっかりと高さがあり、通りからの視線を程よく遮ってくれるのも大きな安心材料ですね。
![]() |
![]() |
![]() |
![]() |
水回りは、まるでホテルのような佇まいです。洗面所には収納を兼ねた大きな鏡を設え、空間を広く見せつつ機能性も確保。洗濯機脇には収納棚も完備されており、細部まで使いやすさに配慮された空間は、朝の準備から一日の終わりのケアまで、暮らしに寄り添う頼もしい水回りスペース空間です。
![]() |
![]() |
玄関から廊下へと続くスペースには、アクセントとして緑色の和紙が設えられています。壁の上部をガラスで仕切ることで、廊下にも自然光が届き、リビングからの光と溶け合うような明るく開放的な空気感。閉塞感を感じさせない空間の連続性は、住まい全体の広がりを最大限に活かす細やかな配慮が感じられます。
![]() |
![]() |
玄関脇には約1畳のシューズインクローゼットを完備。玄関の延長にあるフラットな設計のため、ベビーカーやペット用カート、キャリーケースなどもそのままスムーズに収納可能です。お部屋の入口の床や扉もヴィンテージマンションらしい可愛らしい雰囲気です。
![]() |
![]() |
![]() |
![]() |
室内には、ディスプレイコーナーが各所に設けられています。お気に入りのオブジェや季節のお花を飾れば、空間の質がぐっと高まるはず。「見せる楽しみ」を叶えつつ、同時にたっぷりとした収納も備えているため、お部屋はいつもすっきりと保てそう。遊び心と機能性に配慮されたバランスの良い住まいです。
「黒谷和紙」が壁、天井に贅沢に使われたこだわりのお部屋です。洗練された内装でありながら、和紙の柔らかな雰囲気も共存している居心地の良い空間でした。暗くなった帰り道、外からお部屋を見上げるとと障子越しの行燈のような優しい明かりがその日の疲れをそっと癒してくれそうです。
![]()
■成約済 2階部分(2LDK+WIC・SIC/68.47㎡)
●新規フルリノベーション実施(2024年4月中旬完成予定)
●収納豊富で暮らしやすい2LDK
●ペット飼育可能(細則有)
●青南小学校学区域
![]() |
2階部分に新規リノベーション住戸が販売開始いたしました!
専有面積約68.47㎡の2LDKで、単身者から少人数のご家族まで幅広くご検討いただけそうです。
リビングダイニングは約16.6帖でインナーテラス付き、廊下とパントリーの2方向から出入りできるキッチン、ウォークインクローゼットやシューズインクローゼットなど各所に備わった収納などなど、住み心地の良さそうなお部屋です◎
現在改装工事中で3月下旬に完成を予定しています(工事中のご内見は日程調整が必要です)。
立地、管理体制、ペット飼育OKなどおすすめ要素が揃った物件ですので、お早めのご検討をおすすめします。
お気軽にお問い合わせくださいませ!
施工イメージ
![]() |
![]()
■成約事例 2階部分 (1SLDK/68.61㎡)
●スタイリッシュなリノベーション住戸!(2011年4月)
●事務所・作業場にも最適なワークスペースあり
●ブラックウォルナットや磁気質タイルなど、こだわりのマテリアルを採用
●ロフトあり
![]() |
ご紹介するのは、2階のお部屋です。68.61㎡のゆったりした1SLDKタイプで、ご夫婦でゆったりお住まいいただくイメージでしょうか♪
2011年にフルリノベーションされ、室内はとてもスタイリッシュな雰囲気です。
![]() |
玄関を開けると、右手に広々としたワークスペースがあります。事務所や作業場としてぴったりの空間ですが、仕切りをつけて居住スペースとしてもお使いいただけます(別途費用負担)。
![]() |
キッチンやバスルームなどの水廻りもディテールまでこだわりを感じるデザイン。床材にはブラックウォルナットが用いられ、グッと落ち着いた雰囲気に。
お部屋の各所に高窓が設けられ、開放感のある設えになっています。”白亜の邸宅”の外観に相応しい、素敵なお部屋です♪